1505 S State St
Ann Arbor, MI 48104

Scroll to Content

Details

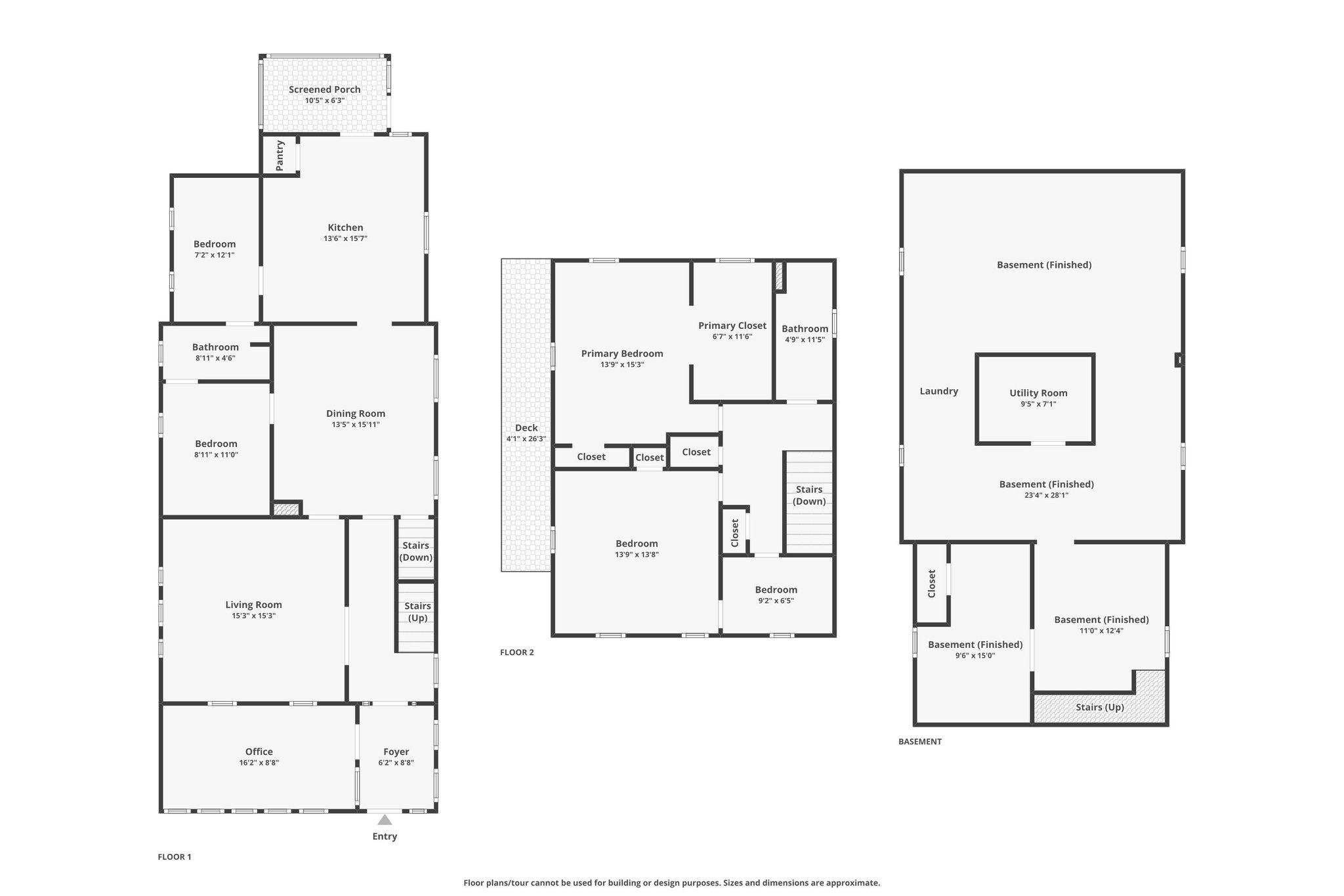
Rare opportunity for investment or your own home in Ann Arbor! Well-kept home with spacious rooms is a short walk from the Big House, athletic campus, and UM Golf Course. Four bedrooms, two full baths, sunroom, living room, large dining room, and generous kitchen with two refrigerators. Full basement with laundry. Three season room and fenced yard with paver patio are extra attractions. Second level egress balcony with stairway, off-street parking in driveway. House includes some original vintage lighting and woodwork, wainscoting, and French doors, adding charm and character to elevate the home above the ordinary. Convenient to shopping, coffee, nightlife, & dining. Short, direct bus route to downtown & Central Campus on AATA Route 62; the stop is only 3 houses away. Fantastic potential. Don't wait for this one!

  • $850,000
  • 4 Bedrooms
  • 2 Bathrooms
  • 2,082 Sq/ft
  • Lot 0.16 Acres
  • 3 Parking Spots
  • Built in 1920
  • MLS: 26009933

Images

Videos

Floor Plans

3D Tour